
佛山市91抖阴视频在线观看传感仪器有限公司
联系人:张总
电话:0757-22300095
手机:18902563858
邮箱:931199351@qq.com
传真:0757-22300097
地址:广东省佛山市顺德区勒流富安工业区光电产业园4栋303号
网址:www.ncgttw.com
HDS10091抖阴网站在线观看1号储液罐
HDS100-1#沉降监测91抖阴网站在线观看储液灌配套压差式91抖阴网站在线观看使用,用于测量基础和建筑物各个测点的相对沉降。
91抖阴网站在线观看是一种高精密91抖阴视频免费版视频测量仪器,整套设备由一个高精度水准仪,加上储液罐、保护罩、调平支架、联通气、水管等部件组成。
应用领域:
轨道交通路基沉降监测
地铁支撑墙沉降监测
隧道上部山体及建筑物
高速公路路基、边坡沉降检测
桥墩、基坑沉降检测
核电站、大型水电站
大坝及水利枢纽、高层建筑的基础
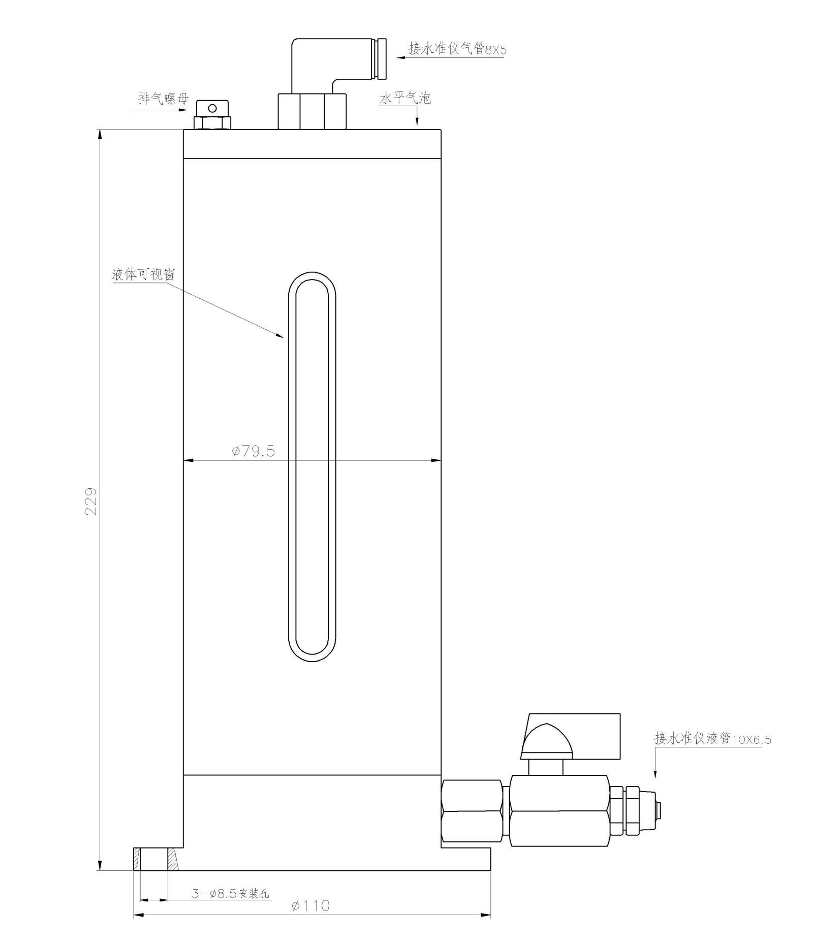
HDS100-1#91抖阴网站在线观看储液罐容量:0.8L
HDS100-1#储液罐尺寸图(单位mm):

储液罐的应用